











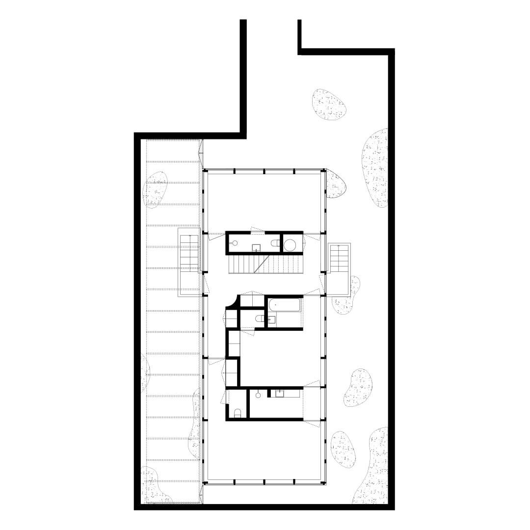
The Hidden Villa is located in the centre of Brussels hidden behind the veil of the 19th century bourgeois city. The project is an extreme example of this slow urban mutation: a 4-facade house hidden behind a typical Brussels house in what used to be an old garage. The house sits as a block in the middle of the plot and is surrounded by two narrow gardens; one for winter, one for summer. The perimeter is defined by a 2.5m wall where the roof of the old garage used to rest. Due to the height limitations of the urban code the house is buried. On the ground floor a glass façade and three technical blocks define the private rooms. Above the glass façade is suspended the massive living space from which the gardens inside the block can be seen through huge openings.
Year
2017-2020
Location
Brussels, Belgium
Type
Single Family House
Status
Built
Surface
250m2
Client
Private
Collaborator(s)
Fast Entreprise
Design Team
Santiago Giusto, Nelson Van Campenhout
Photography
Maxime Delvaux