












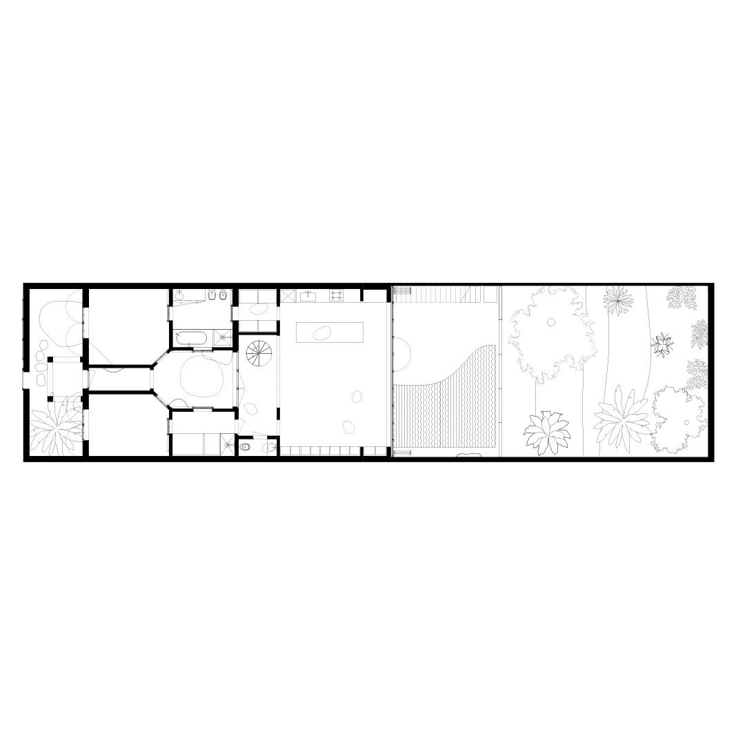
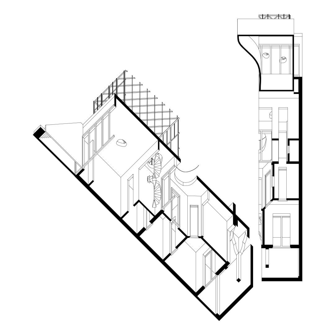
The structure of an old house in ruins is the departing point to build a new inhabited space. Instead of imposing a new logic over the ruin, the project intensifies the spatial conditions of the existing structure. The ruin is not understood as something to be preserved, but as a repertoire of operative strategies that emerged by the effects of abandonment. Its condition is understood as matter that generates the ideas to rebuild itself internalizing in that way architecture biggest fear: decay.
Year
2019-2022
Type
Housing unit
Location
Buenos Aires, Argentina
Status
Built
Surface
340m2
Client
Private
Collaborator(s)
Marcos Asa
Design Team
Santiago Giusto, Nelson Van Campenhout, Marcos Asa, Jorge Godoy, Dario Graschinky
Photography
Javier Agstin Rojas