






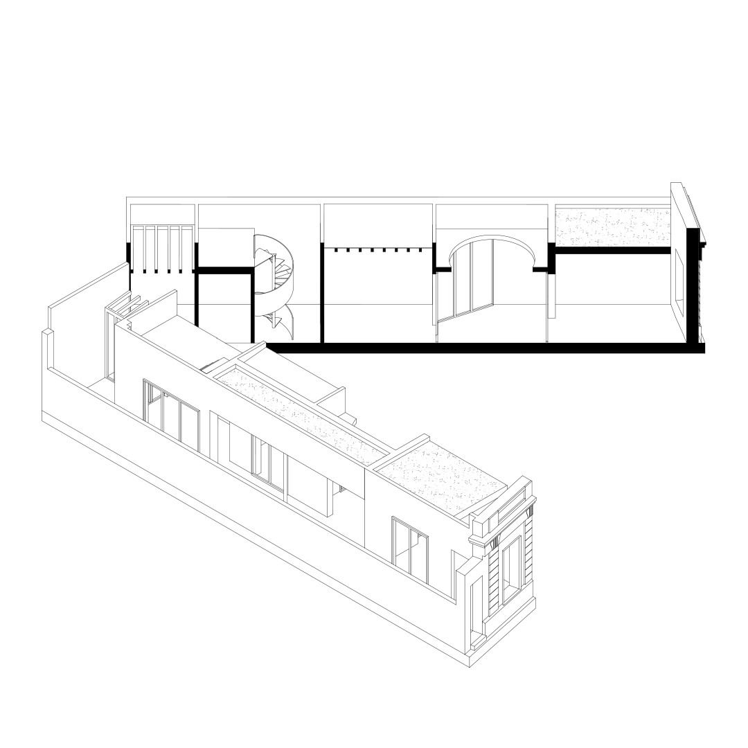
The Chorizo House is one of the Buenos Aires’s most common typologies. Mostly developed at the beginning of the 20th century they are defined by an exterior corridor that distributed a series of separate rooms in enfilade. Each of the rooms houses a specific function and organized the lives of the immigrants that arrived by masses during the 1900s. When we were asked to destroy and old Casa Chorizo to build a new house, we proposed to keep the house structure and make architecture by subtracting material, not driven by a nostalgic desire of preservation but with the positivist intention to transcend its spatial qualities.
Year
2018-2020
Location
Buenos Aires, Argentina
Type
House refurbishment
Status
Built
Surface
240m2
Client
Private
Collaborator(s)
Marcos Asa
Design Team
Santiago Giusto, Nelson Van Campenhout, Marcos Asa, Jorge Godoy, Dario Graschinky
Phototgraphy
Javier Agstin Rojas